Met een eigen account kun je panden volgen, opslaan als favoriet, je zoekprofiel opslaan en jouw eigen notities bij een huis maken.
Verkocht onder voorbehoud: Maria Van Bourgondiëstraat 3, 5346 PT Oss
| Type object | Woonhuis, eengezinswoning, tussenwoning |
| Perceeloppervlakte | 154 m² |
| Woonoppervlakte | 106 m² |
| Aanvaarding | In overleg |
| Status | Verkocht onder voorbehoud |
Algemeen
Aan de rustige en geliefde Maria van Bourgondiëstraat ligt deze fraaie, uitgebouwde eengezinswoning waar ruimte, comfort en luxe op harmonieuze wijze samenkomen. Met een royaal woonoppervlak van circa 106 m² en een veelzijdige hobbyruimte/mancave van ongeveer 32 m² biedt deze woning alles wat een modern gezin zich kan wensen.
Bij binnenkomst voelt u direct de prettige sfeer. De lichte woonka... Meer informatie
Bij binnenkomst voelt u direct de prettige sfeer. De lichte woonka... Meer informatie
-
Kenmerken Type object Woonhuis, eengezinswoning, tussenwoning Bouwperiode 1963 Status Verkocht onder voorbehoud Alle kenmerken -
Kenmerken
| Referentienummer | 05936 |
| Vraagprijs | € 355.000,- k.k. |
| Status | Verkocht onder voorbehoud |
| Aanvaarding | In overleg |
| Laatste wijziging | Donderdag 26 maart 2026 |
| Type object | Woonhuis, eengezinswoning, tussenwoning |
| Soort bouw | Bestaande bouw |
| Bouwperiode | 1963 |
| Perceeloppervlakte | 154 m² |
| Woonoppervlakte | 106 m² |
| Inhoud | 364 m³ |
| Oppervlakte externe bergruimte | 32 m² |
| Aantal bouwlagen | 3 |
| Aantal kamers | 5 (waarvan 4 slaapkamers) |
| Aantal badkamers | 1 (en 1 apart toilet) |
| Type | Achtertuin |
| Oriëntering | Oosten |
| Heeft een achterom | Ja |
| Staat | Goed onderhouden |
| Energielabel | A |
| CV ketel | Intergas HRE |
| Bouwjaar | 2022 |
| Combiketel | Ja |
| Eigendom | Eigendom |
| Warm water | CV-ketel |
| Verwarmingssysteem | Centrale verwarming |
| Tuin aanwezig | Ja |
| Heeft schuur/berging | Ja |
| Kadastrale aanduiding | Oss K 525 |
| Perceeloppervlakte | 154 m² |
| Omvang | Geheel perceel |
| Eigendomsituatie | Eigen grond |
Beschrijving
Aan de rustige en geliefde Maria van Bourgondiëstraat ligt deze fraaie, uitgebouwde eengezinswoning waar ruimte, comfort en luxe op harmonieuze wijze samenkomen. Met een royaal woonoppervlak van circa 106 m² en een veelzijdige hobbyruimte/mancave van ongeveer 32 m² biedt deze woning alles wat een modern gezin zich kan wensen.
Bij binnenkomst voelt u direct de prettige sfeer. De lichte woonkamer nodigt uit om thuis te komen en heerlijk te ontspannen. Aan de achterzijde bevindt zich de stijlvolle uitgebouwde keuken, met volop ruimte voor een grote eettafel. Dit is zonder twijfel het warme hart van het huis: dé plek voor gezellige diners, lange avonden en waardevolle momenten met familie en vrienden.
De woning beschikt over vier ruime slaapkamers, waardoor er volop mogelijkheden zijn voor slapen, werken aan huis of het creëren van een hobby- of logeerkamer. De moderne badkamer is luxe afgewerkt en biedt een comfortabele, ontspannen start en afsluiting van de dag.
Ook buiten is het genieten. De vrij gelegen achtertuin op het oosten biedt volop zon, rust en privacy. Of u nu wilt ontspannen met een goed boek, wilt tuinieren of kinderen vrij wilt laten spelen, deze tuin vormt een heerlijke verlenging van de woonruimte. Achter in de tuin bevindt zich bovendien de hobbyruimte/mancave, een fijne extra plek voor ontspanning, creativiteit of gezellig samenzijn.
De wijk kenmerkt zich door een verzorgde, gemoedelijke uitstraling en wordt gewaardeerd door bewoners die op zoek zijn naar rust en wooncomfort. Alle dagelijkse voorzieningen bevinden zich binnen handbereik, wat het wonen hier extra prettig maakt.
Kortom: een complete, comfortabele en sfeervolle woning op een fijne locatie – een plek waar u zich direct thuis zult voelen en nog jarenlang met plezier zult wonen.
Bij binnenkomst voelt u direct de prettige sfeer. De lichte woonkamer nodigt uit om thuis te komen en heerlijk te ontspannen. Aan de achterzijde bevindt zich de stijlvolle uitgebouwde keuken, met volop ruimte voor een grote eettafel. Dit is zonder twijfel het warme hart van het huis: dé plek voor gezellige diners, lange avonden en waardevolle momenten met familie en vrienden.
De woning beschikt over vier ruime slaapkamers, waardoor er volop mogelijkheden zijn voor slapen, werken aan huis of het creëren van een hobby- of logeerkamer. De moderne badkamer is luxe afgewerkt en biedt een comfortabele, ontspannen start en afsluiting van de dag.
Ook buiten is het genieten. De vrij gelegen achtertuin op het oosten biedt volop zon, rust en privacy. Of u nu wilt ontspannen met een goed boek, wilt tuinieren of kinderen vrij wilt laten spelen, deze tuin vormt een heerlijke verlenging van de woonruimte. Achter in de tuin bevindt zich bovendien de hobbyruimte/mancave, een fijne extra plek voor ontspanning, creativiteit of gezellig samenzijn.
De wijk kenmerkt zich door een verzorgde, gemoedelijke uitstraling en wordt gewaardeerd door bewoners die op zoek zijn naar rust en wooncomfort. Alle dagelijkse voorzieningen bevinden zich binnen handbereik, wat het wonen hier extra prettig maakt.
Kortom: een complete, comfortabele en sfeervolle woning op een fijne locatie – een plek waar u zich direct thuis zult voelen en nog jarenlang met plezier zult wonen.
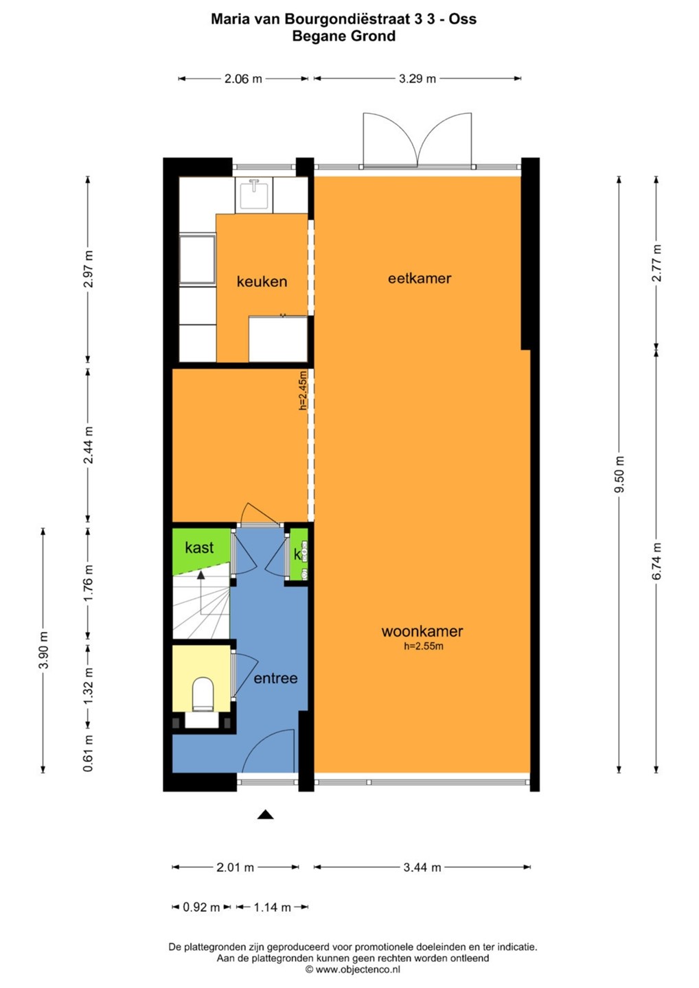
Indeling
Bij binnenkomst ervaar je direct de prettige sfeer van deze woning. De lichte en verzorgde hal is afgewerkt met een stijlvolle tegelvloer met vloerverwarming, strak gestucte wanden en beschikt over een praktische garderobehoek. Vanuit de hal zijn de meterkast, trapkast, de moderne toiletruimte en de woonkamer bereikbaar. Het toilet is uitgevoerd met een wandcloset en sluit perfect aan bij de eigentijdse uitstraling van de woning.
De royale L-vormige woonkamer biedt een speelse en functionele indeling. Aan de voorzijde bevindt zich een comfortabele zithoek, terwijl aan de achterzijde volop ruimte is voor een grote eettafel. Grote raampartijen zorgen voor een overvloed aan daglicht en bieden een mooi zicht op de achtertuin. De hoogwaardige afwerking, met een fraaie tegelvloer voorzien van vloerverwarming, stoere steenstrips wanden en moderne kozijnen met dubbele beglazing, geeft de woonkamer een luxe en eigentijdse uitstraling.
Aan de achterzijde van de woning ligt de open keuken, die van alle gemakken is voorzien. Het lichte keukenmeubel biedt volop bergruimte en is uitgerust met diverse inbouwapparatuur, waaronder een combimagnetron, een oven, een inductiekookplaat en afzuiging. Via de twee openslaande tuindeuren loop je zo de achtertuin in, waardoor binnen en buiten op een natuurlijke manier met elkaar verbonden zijn.
De royale L-vormige woonkamer biedt een speelse en functionele indeling. Aan de voorzijde bevindt zich een comfortabele zithoek, terwijl aan de achterzijde volop ruimte is voor een grote eettafel. Grote raampartijen zorgen voor een overvloed aan daglicht en bieden een mooi zicht op de achtertuin. De hoogwaardige afwerking, met een fraaie tegelvloer voorzien van vloerverwarming, stoere steenstrips wanden en moderne kozijnen met dubbele beglazing, geeft de woonkamer een luxe en eigentijdse uitstraling.
Aan de achterzijde van de woning ligt de open keuken, die van alle gemakken is voorzien. Het lichte keukenmeubel biedt volop bergruimte en is uitgerust met diverse inbouwapparatuur, waaronder een combimagnetron, een oven, een inductiekookplaat en afzuiging. Via de twee openslaande tuindeuren loop je zo de achtertuin in, waardoor binnen en buiten op een natuurlijke manier met elkaar verbonden zijn.
Eerste verdieping
Op de eerste verdieping bevinden zich drie goed bemeten slaapkamers en een luxe badkamer. De slaapkamers, met oppervlaktes van circa 11,2 m², 9,7 m² en 5,7 m², zijn verzorgd afgewerkt met een fraaie laminaatvloer en lichte wandafwerkingen. Daarnaast zijn ze voorzien van moderne kozijnen met draai-kiepramen, isolerend dubbel glas en rolluiken, wat bijdraagt aan comfort en energiezuinig wonen. De in 2022 gerealiseerde badkamer is modern, volledig betegeld en straalt luxe uit. Deze comfortabele ruimte is ingericht met een ruime inloopdouche, een stijlvol wastafelmeubel, een wandcloset en een designradiator. Een fijne plek om tot rust te komen, geheel passend bij de hedendaagse woonwensen.
Tweede verdieping
Via een vaste trap is de tweede verdieping bereikbaar. Hier bevindt zich een voorzolder met praktische bergruimte en een extra slaapkamer. De royale slaapkamer is netjes afgewerkt met een strakke laminaatvloer en beschikt over diverse inbouwkasten. Dankzij de verhoogde nok en de grote raampartij is er sprake van extra leefruimte en een prettige lichtinval.
Tuin
Ultiem buitenleven in een stijlvol aangelegde tuin.
Deze fraai aangelegde achtertuin vormt een heerlijke plek om volop te genieten van het buitenleven. Net als de voortuin is ook deze tuin onderhoudsvriendelijk aangelegd en verkeert zij in uitstekende staat. Het strakke kunstgras, het zonnige terras en de stijlvolle steen-houten erfafscheiding zorgen voor een moderne en verzorgde uitstraling.
De tuin biedt volop ruimte om te ontspannen, te loungen of gezellig met familie en vrienden te tafelen. Achter in de tuin bevindt zich een prachtige hobbyruimte/mancave, compleet met eigen toilet. Dankzij de glazen wand, die gedeeltelijk opengezet kan worden, is deze ruimte flexibel te gebruiken en ideaal als overdekt terras.
Achter de mancave bevindt zich bovendien een praktische berging met twee openslaande deuren, wat zorgt voor extra comfort en gebruiksgemak.
Kortom: een moderne en veelzijdige tuin die rust, comfort en functionaliteit perfect combineert en voelt als een volwaardige verlenging van de woonruimte.
Deze fraai aangelegde achtertuin vormt een heerlijke plek om volop te genieten van het buitenleven. Net als de voortuin is ook deze tuin onderhoudsvriendelijk aangelegd en verkeert zij in uitstekende staat. Het strakke kunstgras, het zonnige terras en de stijlvolle steen-houten erfafscheiding zorgen voor een moderne en verzorgde uitstraling.
De tuin biedt volop ruimte om te ontspannen, te loungen of gezellig met familie en vrienden te tafelen. Achter in de tuin bevindt zich een prachtige hobbyruimte/mancave, compleet met eigen toilet. Dankzij de glazen wand, die gedeeltelijk opengezet kan worden, is deze ruimte flexibel te gebruiken en ideaal als overdekt terras.
Achter de mancave bevindt zich bovendien een praktische berging met twee openslaande deuren, wat zorgt voor extra comfort en gebruiksgemak.
Kortom: een moderne en veelzijdige tuin die rust, comfort en functionaliteit perfect combineert en voelt als een volwaardige verlenging van de woonruimte.