Met een eigen account kun je panden volgen, opslaan als favoriet, je zoekprofiel opslaan en jouw eigen notities bij een huis maken.
Verkocht onder voorbehoud: Boekweitstraat 39, 5388 CA Nistelrode
| Type object | Woonhuis, eengezinswoning, vrijstaande woning |
| Perceeloppervlakte | 558 m² |
| Woonoppervlakte | 147 m² |
| Aanvaarding | In overleg |
| Status | Verkocht onder voorbehoud |
Algemeen
Comfortabel, duurzaam en volledig instapklaar. Deze vrijstaande geschakelde woning met grote (39m²) vrijstaande garage heeft het allemaal!
Ontdek deze energiezuinige woning met energielabel A, die de afgelopen jaren van top tot teen is gemoderniseerd. Stap binnen in dit sfeervol en strak afgewerkt huis waar werkelijk alles is vernieuwd: van het stucwerk tot de moderne badkamer (2017), luxe keu... Meer informatie
Ontdek deze energiezuinige woning met energielabel A, die de afgelopen jaren van top tot teen is gemoderniseerd. Stap binnen in dit sfeervol en strak afgewerkt huis waar werkelijk alles is vernieuwd: van het stucwerk tot de moderne badkamer (2017), luxe keu... Meer informatie
-
Kenmerken Type object Woonhuis, eengezinswoning, vrijstaande woning Bouwperiode 1964 Status Verkocht onder voorbehoud Alle kenmerken -
Kenmerken
| Referentienummer | 05919 |
| Vraagprijs | € 625.000,- k.k. |
| Status | Verkocht onder voorbehoud |
| Aanvaarding | In overleg |
| Laatste wijziging | Vrijdag 2 januari 2026 |
| Type object | Woonhuis, eengezinswoning, vrijstaande woning |
| Soort bouw | Bestaande bouw |
| Bouwperiode | 1964 |
| Perceeloppervlakte | 558 m² |
| Woonoppervlakte | 147 m² |
| Inhoud | 544 m³ |
| Oppervlakte externe bergruimte | 53 m² |
| Oppervlakte gebouwgebonden buitenruimte | 1 m² |
| Aantal bouwlagen | 3 |
| Aantal kamers | 6 (waarvan 5 slaapkamers) |
| Aantal badkamers | 1 (en 2 aparte toiletten) |
| Type | Achtertuin |
| Hoofdtuin | Ja |
| Oriëntering | West |
| Staat | Goed onderhouden |
| Energielabel | A |
| CV ketel | Remeha |
| Bouwjaar | 2019 |
| Combiketel | Ja |
| Eigendom | Eigendom |
| Warm water | CV-ketel |
| Verwarmingssysteem | Centrale verwarming |
| Parkeergelegenheid | Garage |
| Tuin aanwezig | Ja |
| Heeft een garage | Ja |
| Heeft schuur/berging | Ja |
| Kadastrale aanduiding | Nistelrode F 69 |
| Perceeloppervlakte | 558 m² |
| Omvang | Geheel perceel |
| Eigendomsituatie | Eigen grond |
Beschrijving
Comfortabel, duurzaam en volledig instapklaar. Deze vrijstaande geschakelde woning met grote (39m²) vrijstaande garage heeft het allemaal!
Ontdek deze energiezuinige woning met energielabel A, die de afgelopen jaren van top tot teen is gemoderniseerd. Stap binnen in dit sfeervol en strak afgewerkt huis waar werkelijk alles is vernieuwd: van het stucwerk tot de moderne badkamer (2017), luxe keuken (2017) en een energiezuinige cv-installatie uit 2017. De gehele woning is voorzien van onderhoudsarme PVC-vloeren, wat zorgt voor een rustige, eigentijdse uitstraling.
Met maar liefst 16 zonnepanelen en airconditioning in de woonkamer, alle slaapkamers én de multifunctionele thuiswerkplek/speelkamer, geniet je hier het hele jaar door van optimaal comfort én lage energielasten. De thuiswerkplek kan bovendien eenvoudig worden ingericht als extra slaapkamer, waardoor je het complete woonprogramma op de begane grond kunt realiseren. De veelzijdige thuiswerkplek maakt deze woning ideaal voor thuiswerken of het uitoefenen van een praktijk aan huis, maar kan net zo goed dienen als speelkamer of slaapkamer, precies wat jouw situatie vraagt.
Dankzij de centrale ligging zijn scholen, sportvoorzieningen, winkels en supermarkten in slechts enkele minuten bereikbaar. Ook de verbindingen richting Oss, Uden en ’s-Hertogenbosch zijn uitstekend, waardoor de Boekweitstraat ideaal is voor forenzen die comfortabel en rustig willen wonen.
Buiten is het minstens zo aantrekkelijk: de ruime, vrij gelegen achtertuin is prachtig aangelegd en biedt volop privacy, rust en mogelijkheden voor ontspanning.
Kortom: een moderne, duurzame en zeer complete woning die direct te betrekken is. Een heerlijke plek waar je jarenlang met veel plezier kunt wonen!
Ontdek deze energiezuinige woning met energielabel A, die de afgelopen jaren van top tot teen is gemoderniseerd. Stap binnen in dit sfeervol en strak afgewerkt huis waar werkelijk alles is vernieuwd: van het stucwerk tot de moderne badkamer (2017), luxe keuken (2017) en een energiezuinige cv-installatie uit 2017. De gehele woning is voorzien van onderhoudsarme PVC-vloeren, wat zorgt voor een rustige, eigentijdse uitstraling.
Met maar liefst 16 zonnepanelen en airconditioning in de woonkamer, alle slaapkamers én de multifunctionele thuiswerkplek/speelkamer, geniet je hier het hele jaar door van optimaal comfort én lage energielasten. De thuiswerkplek kan bovendien eenvoudig worden ingericht als extra slaapkamer, waardoor je het complete woonprogramma op de begane grond kunt realiseren. De veelzijdige thuiswerkplek maakt deze woning ideaal voor thuiswerken of het uitoefenen van een praktijk aan huis, maar kan net zo goed dienen als speelkamer of slaapkamer, precies wat jouw situatie vraagt.
Dankzij de centrale ligging zijn scholen, sportvoorzieningen, winkels en supermarkten in slechts enkele minuten bereikbaar. Ook de verbindingen richting Oss, Uden en ’s-Hertogenbosch zijn uitstekend, waardoor de Boekweitstraat ideaal is voor forenzen die comfortabel en rustig willen wonen.
Buiten is het minstens zo aantrekkelijk: de ruime, vrij gelegen achtertuin is prachtig aangelegd en biedt volop privacy, rust en mogelijkheden voor ontspanning.
Kortom: een moderne, duurzame en zeer complete woning die direct te betrekken is. Een heerlijke plek waar je jarenlang met veel plezier kunt wonen!
Indeling
Bij binnenkomst in de hal word je begroet door een stijlvolle pvc-vloer. Hier bevindt zich ook de meterkast, uitgerust met een moderne groepenkast met 13 groepen van 16 ampère, een kookgroep, drie aardlekschakelaars en een schakelautomaat voor de zonnepanelen.
Vanuit de hal loop je door naar de open keuken. Het moderne keukenmeubel, uitgevoerd met greeploze betonlook fronten en een composiet aanrechtblad, vormt een echte eyecatcher. De keuken biedt volop opbergruimte en is voorzien van hoogwaardige inbouwapparatuur, waaronder een koelkast, oven, vaatwasser, inductiekookplaat en rvs-afzuigkap. Daarnaast is er voldoende ruimte voor een eettafel met vier stoelen, ideaal om ’s ochtends in alle rust te ontbijten.
De royale, uitgebouwde doorzonwoonkamer is speels ingedeeld met een gezellige zithoek aan de voorzijde en een ruim eetgedeelte aan de achterzijde. Dankzij de grote ramen en dubbele tuindeuren geniet je hier van veel natuurlijk daglicht en een prachtig uitzicht op de achtertuin. De woonkamer is stijlvol afgewerkt met een pvc-vloer, modern behang op een deel van de wanden en strak gestucte wanden en plafonds.
Via de keuken kom je in de praktische bijkeuken. Hier vind je het toilet met modern wandcloset, de cv-installatie (Remeha, 2017) en diverse vaste kasten met werkblad en de benodigde witgoedaansluitingen.
Aansluitend bevinden zich de badkamer en de thuiswerkplek.
De moderne badkamer, gerealiseerd in 2017, biedt alle comfort: een heerlijk ligbad, een inloopdouche, een dubbel wastafelmeubel en een designradiator.
De aangrenzende thuiswerkplek is multifunctioneel en afgewerkt met een pvc-vloer en strak gestucte wanden en plafonds met inbouwspotjes. Grote raampartijen zorgen ook hier voor veel licht en een fijn uitzicht op de achtertuin.
Vanuit de hal loop je door naar de open keuken. Het moderne keukenmeubel, uitgevoerd met greeploze betonlook fronten en een composiet aanrechtblad, vormt een echte eyecatcher. De keuken biedt volop opbergruimte en is voorzien van hoogwaardige inbouwapparatuur, waaronder een koelkast, oven, vaatwasser, inductiekookplaat en rvs-afzuigkap. Daarnaast is er voldoende ruimte voor een eettafel met vier stoelen, ideaal om ’s ochtends in alle rust te ontbijten.
De royale, uitgebouwde doorzonwoonkamer is speels ingedeeld met een gezellige zithoek aan de voorzijde en een ruim eetgedeelte aan de achterzijde. Dankzij de grote ramen en dubbele tuindeuren geniet je hier van veel natuurlijk daglicht en een prachtig uitzicht op de achtertuin. De woonkamer is stijlvol afgewerkt met een pvc-vloer, modern behang op een deel van de wanden en strak gestucte wanden en plafonds.
Via de keuken kom je in de praktische bijkeuken. Hier vind je het toilet met modern wandcloset, de cv-installatie (Remeha, 2017) en diverse vaste kasten met werkblad en de benodigde witgoedaansluitingen.
Aansluitend bevinden zich de badkamer en de thuiswerkplek.
De moderne badkamer, gerealiseerd in 2017, biedt alle comfort: een heerlijk ligbad, een inloopdouche, een dubbel wastafelmeubel en een designradiator.
De aangrenzende thuiswerkplek is multifunctioneel en afgewerkt met een pvc-vloer en strak gestucte wanden en plafonds met inbouwspotjes. Grote raampartijen zorgen ook hier voor veel licht en een fijn uitzicht op de achtertuin.
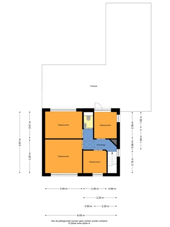
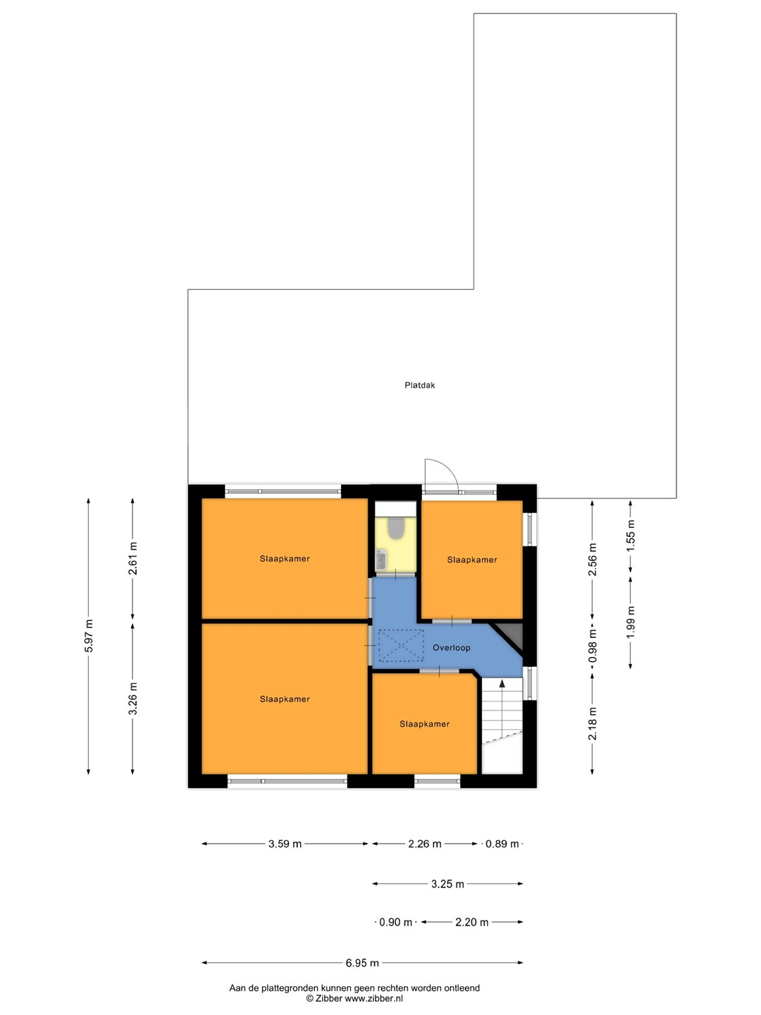
Eerste verdieping
Op deze verdieping bevinden zich drie slaapkamers en een praktische kledingkamer. De slaapkamers hebben een oppervlakte van circa 11,7m², 9,4m² en 6m² en zijn stuk voor stuk afgewerkt met een fraaie pvc-vloer, strak gestucte wanden en plafonds. Alle kamers beschikken bovendien over dubbel glas en airconditioning die kan verwarmen en koelen, wat zorgt voor extra comfort. Daarnaast is er op deze verdieping een moderne toiletruimte aanwezig, uitgerust met een wandcloset en een fonteintje.
Tweede verdieping
Via een vlizotrap bereik je de praktische bergzolder. Dankzij de royale indeling berg je hier moeiteloos al je seizoensspullen, hobby-materialen, archiefdozen en grotere items op, netjes uit het zicht, maar altijd binnen handbereik.
Tuin
Geniet van het ultieme buitenleven in deze stijlvolle tuin!
Deze prachtig onderhouden tuin vormt een oase van rust en moderniteit. Het strak gemaaide gazon nodigt uit tot ontspannen, terwijl de fraai aangelegde borders met decoratieve beplanting een vleugje natuurlijke elegantie toevoegen. De royale lengte van de tuin biedt volop privacy en op het ruime terras geniet je van de lange zomeravonden. Perfect voor een barbecue, een gezellige borrel of een ontspannen leesmoment in de buitenlucht.
Achter de vrijstaande garage bevindt zich bovendien een charmant, verborgen speelhoekje voor de kinderen.
Deze tuin is niet alleen praktisch, maar ook een stijlvol visitekaartje voor de woning. Ideaal voor iedereen die houdt van luxe, comfort en volledige privacy.
Deze prachtig onderhouden tuin vormt een oase van rust en moderniteit. Het strak gemaaide gazon nodigt uit tot ontspannen, terwijl de fraai aangelegde borders met decoratieve beplanting een vleugje natuurlijke elegantie toevoegen. De royale lengte van de tuin biedt volop privacy en op het ruime terras geniet je van de lange zomeravonden. Perfect voor een barbecue, een gezellige borrel of een ontspannen leesmoment in de buitenlucht.
Achter de vrijstaande garage bevindt zich bovendien een charmant, verborgen speelhoekje voor de kinderen.
Deze tuin is niet alleen praktisch, maar ook een stijlvol visitekaartje voor de woning. Ideaal voor iedereen die houdt van luxe, comfort en volledige privacy.