Met een eigen account kun je panden volgen, opslaan als favoriet, je zoekprofiel opslaan en jouw eigen notities bij een huis maken.
Verkocht: Adelaar 51, 5348 EH Oss
| Type object | Woonhuis, eengezinswoning, geschakelde woning |
| Perceeloppervlakte | 301 m² |
| Woonoppervlakte | 161 m² |
| Aanvaarding | In overleg |
| Status | Verkocht |
Algemeen
Wonen in rust, ruimte, comfort en alles gelijkvloers binnen handbereik.
In een rustige, doodlopende straat staat deze verrassend ruime, geschakelde woning op een royaal perceel van 301 m². Met een indrukwekkend woonoppervlak van maar liefst 161 m², een levensloopbestendige indeling en volop privacy is dit een huis dat comfort en veelzijdigheid perfect combineert.
De woning beschikt over vier... Meer informatie
In een rustige, doodlopende straat staat deze verrassend ruime, geschakelde woning op een royaal perceel van 301 m². Met een indrukwekkend woonoppervlak van maar liefst 161 m², een levensloopbestendige indeling en volop privacy is dit een huis dat comfort en veelzijdigheid perfect combineert.
De woning beschikt over vier... Meer informatie
-
Kenmerken Type object Woonhuis, eengezinswoning, geschakelde woning Bouwperiode 1974 Status Verkocht Alle kenmerken -
Kenmerken
| Referentienummer | 05923 |
| Vraagprijs | € 435.000,- k.k. |
| Status | Verkocht |
| Aanvaarding | In overleg |
| Laatste wijziging | Woensdag 4 maart 2026 |
| Type object | Woonhuis, eengezinswoning, geschakelde woning |
| Soort bouw | Bestaande bouw |
| Bouwperiode | 1974 |
| Perceeloppervlakte | 301 m² |
| Woonoppervlakte | 161 m² |
| Inhoud | 635 m³ |
| Oppervlakte overige inpandige ruimten | 18 m² |
| Oppervlakte externe bergruimte | 10 m² |
| Aantal bouwlagen | 2 |
| Aantal kamers | 5 (waarvan 4 slaapkamers) |
| Aantal badkamers | 2 (en 1 apart toilet) |
| Ligging | Aan rustige weg Dichtbij openbaar vervoer In woonwijk |
| Type | Achtertuin |
| Hoofdtuin | Ja |
| Oriëntering | Zuiden |
| Staat | Goed onderhouden |
| Energielabel | D |
| CV ketel | Nefit Ecomline |
| Bouwjaar | 1998 |
| Eigendom | Eigendom |
| Verwarmingssysteem | Centrale verwarming |
| Tuin aanwezig | Ja |
| Heeft schuur/berging | Ja |
| Kadastrale aanduiding | Oss G 1274 |
| Perceeloppervlakte | 301 m² |
| Omvang | Geheel perceel |
| Eigendomsituatie | Eigen grond |
Beschrijving
Wonen in rust, ruimte, comfort en alles gelijkvloers binnen handbereik.
In een rustige, doodlopende straat staat deze verrassend ruime, geschakelde woning op een royaal perceel van 301 m². Met een indrukwekkend woonoppervlak van maar liefst 161 m², een levensloopbestendige indeling en volop privacy is dit een huis dat comfort en veelzijdigheid perfect combineert.
De woning beschikt over vier volwaardige slaapkamers, met de mogelijkheid om eenvoudig een vijfde slaapkamer te creëren. Daarnaast zijn er twee badkamers aanwezig: één op de begane grond en één op de eerste verdieping. Dankzij het volledige woonprogramma op de begane grond is deze woning uitermate geschikt voor gelijkvloers wonen en daarmee perfect voor minder validen, senioren of iedereen die toekomstbestendig wil wonen.
De woning is gelegen aan de Adelaar in een rustige, kindvriendelijke woonwijk van Oss. Deze prettige woonomgeving kenmerkt zich door een fijne mix van groen, ruimte en goede voorzieningen op korte afstand. In de directe omgeving vindt u diverse speeltuinen, scholen en sportfaciliteiten, wat de locatie zeer geschikt maakt voor gezinnen. Voor forenzen is de ligging ideaal: het NS-station en uitvalswegen richting ’s-Hertogenbosch, Nijmegen en de A50 zijn snel te bereiken.
Een unieke kans voor wie ruimte, rust en gelijkvloers comfort zoekt in één woning.
Kom de sfeer zelf ervaren, u bent van harte welkom!
In een rustige, doodlopende straat staat deze verrassend ruime, geschakelde woning op een royaal perceel van 301 m². Met een indrukwekkend woonoppervlak van maar liefst 161 m², een levensloopbestendige indeling en volop privacy is dit een huis dat comfort en veelzijdigheid perfect combineert.
De woning beschikt over vier volwaardige slaapkamers, met de mogelijkheid om eenvoudig een vijfde slaapkamer te creëren. Daarnaast zijn er twee badkamers aanwezig: één op de begane grond en één op de eerste verdieping. Dankzij het volledige woonprogramma op de begane grond is deze woning uitermate geschikt voor gelijkvloers wonen en daarmee perfect voor minder validen, senioren of iedereen die toekomstbestendig wil wonen.
De woning is gelegen aan de Adelaar in een rustige, kindvriendelijke woonwijk van Oss. Deze prettige woonomgeving kenmerkt zich door een fijne mix van groen, ruimte en goede voorzieningen op korte afstand. In de directe omgeving vindt u diverse speeltuinen, scholen en sportfaciliteiten, wat de locatie zeer geschikt maakt voor gezinnen. Voor forenzen is de ligging ideaal: het NS-station en uitvalswegen richting ’s-Hertogenbosch, Nijmegen en de A50 zijn snel te bereiken.
Een unieke kans voor wie ruimte, rust en gelijkvloers comfort zoekt in één woning.
Kom de sfeer zelf ervaren, u bent van harte welkom!
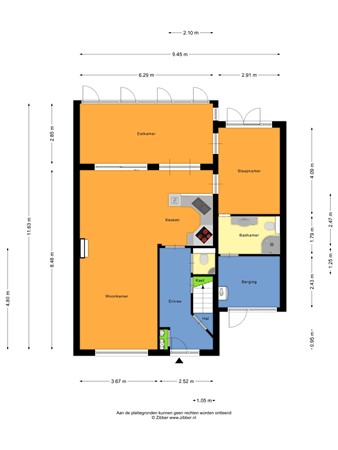
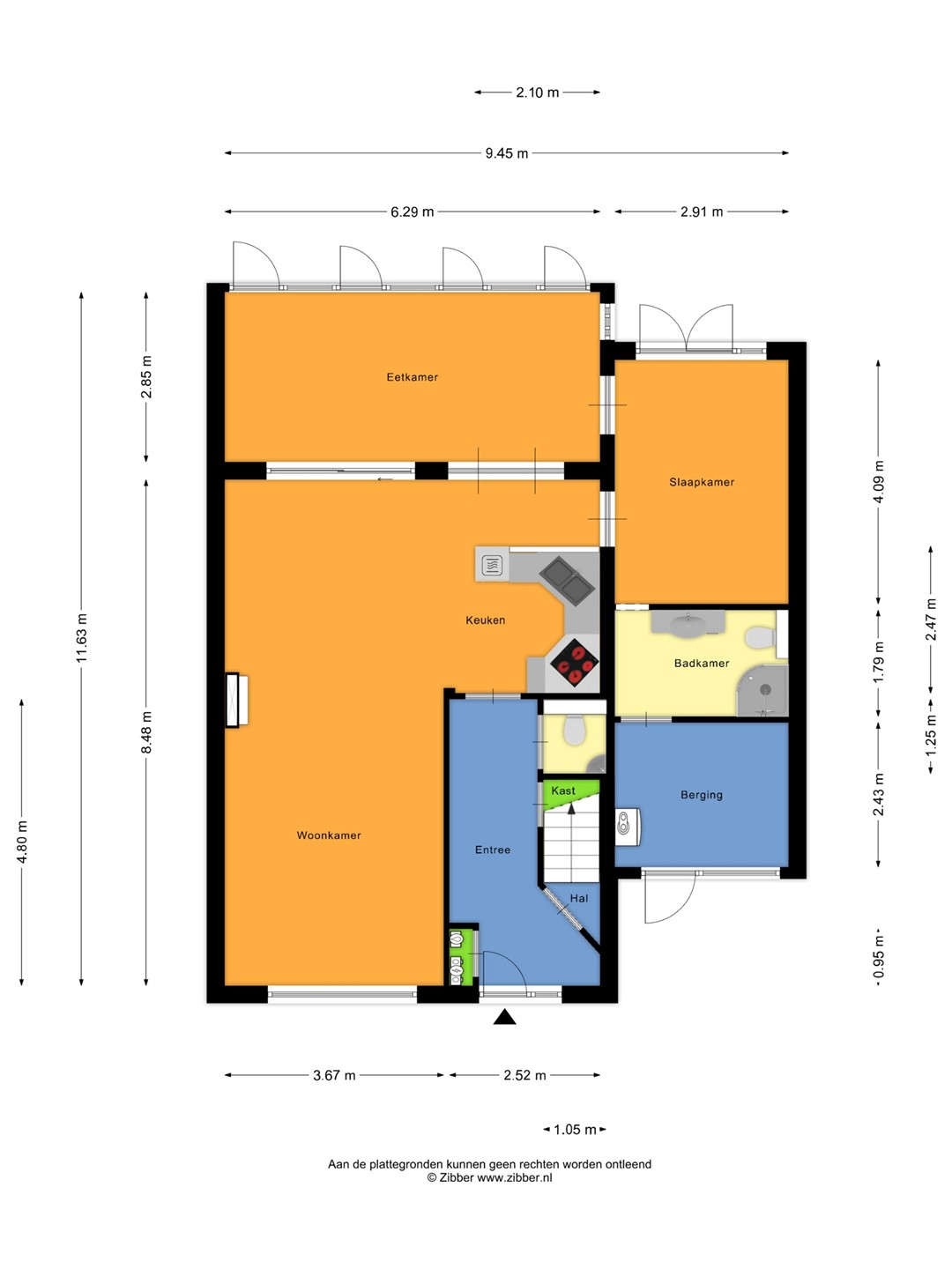
Indeling
Bij binnenkomst in deze keurig afgewerkte woning betreedt u de nette hal met meterkast, trapopgang en een moderne toiletruimte met wandcloset en fonteintje. Vanuit de hal bereikt u de lichte en sfeervolle doorzon woonkamer met een gezellige zithoek. De eikenhouten plankenvloer, het karakteristieke balkenplafond en de sfeervolle haardpartij geven de woonkamer een warme en uitnodigende uitstraling.
Aan de achterzijde bieden schuifdeuren toegang tot de aangename tuinkamer/serre: een heerlijke extra leefruimte met glazen schuifwand en elektrisch bedienbare zonwering. Dankzij de grote raampartijen geniet u hier het hele jaar door van volop daglicht en is het een ideale plek om te tafelen en te ontspannen.
De open keuken is ingericht met een fraai U-vormig keukenmeubel en biedt volop kastruimte. De keuken is voorzien van diverse inbouwapparatuur, waaronder een koelkast, inductiekookplaat, afzuigkap en oven.
Aansluitend bevindt zich een fraaie, tuingerichte slaapkamer met twee openslaande deuren naar de achtertuin. Vanuit de slaapkamer is de licht betegelde badkamer bereikbaar, uitgerust met een wastafelmeubel, douchecabine, tweede toilet en designradiator.
Tot slot is er de inpandige berging, ideaal voor het stallen van fietsen en extra bergruimte. Hier bevinden zich tevens de cv-installatie (1998) en de boiler.
Aan de achterzijde bieden schuifdeuren toegang tot de aangename tuinkamer/serre: een heerlijke extra leefruimte met glazen schuifwand en elektrisch bedienbare zonwering. Dankzij de grote raampartijen geniet u hier het hele jaar door van volop daglicht en is het een ideale plek om te tafelen en te ontspannen.
De open keuken is ingericht met een fraai U-vormig keukenmeubel en biedt volop kastruimte. De keuken is voorzien van diverse inbouwapparatuur, waaronder een koelkast, inductiekookplaat, afzuigkap en oven.
Aansluitend bevindt zich een fraaie, tuingerichte slaapkamer met twee openslaande deuren naar de achtertuin. Vanuit de slaapkamer is de licht betegelde badkamer bereikbaar, uitgerust met een wastafelmeubel, douchecabine, tweede toilet en designradiator.
Tot slot is er de inpandige berging, ideaal voor het stallen van fietsen en extra bergruimte. Hier bevinden zich tevens de cv-installatie (1998) en de boiler.
Eerste verdieping
Op de eerste verdieping bevinden zich drie goed bemeten slaapkamers van circa 13 m², 13 m² en 9 m². Alle kamers zijn voorzien van vloerbedekking en afgewerkt met nette wanden en plafonds. Vanuit één van de slaapkamers bereikt u een zeer royale inloopkast van maar liefst 25 m². Deze ruimte biedt desgewenst eenvoudig de mogelijkheid om te worden gesplitst in twee extra slaapkamers. De ruime badkamer is uitgevoerd in een lichte kleurstelling en beschikt over een comfortabel bubbelbad, een luxe stoomdouchecabine, een wastafelmeubel, een designradiator en een tweede toilet.
Tuin
De achtertuin vormt een waar groen paradijs en biedt een oase van rust en privacy. Dankzij de weelderige begroeiing met volwassen bomen en struiken geniet u hier volop van beschutting en een serene, besloten sfeer. Het royale zonneterras nodigt uit tot ontspannen loungen, gezellig buiten dineren en lange zomeravonden in alle rust. Achterin de tuin bevindt zich een praktische houten tuinhuis met volop ruimte voor tuinmeubilair en gereedschap. Een heerlijke buitenruimte waar ontspanning en genieten centraal staan.
Bijzonderheden
Woonoppervlakte: 161,3m²
Externe bergruimte: 9,6m²
Inpandige bergruimte: 17,9m²
Gebouw gebonden buitenruimte: 0m²
Perceeloppervlak: 301m²
Bouwjaar: 1974
Energielabel: D
Cv-installatie: Nefit Ecomline 1998
Boiler: Nefit
Externe bergruimte: 9,6m²
Inpandige bergruimte: 17,9m²
Gebouw gebonden buitenruimte: 0m²
Perceeloppervlak: 301m²
Bouwjaar: 1974
Energielabel: D
Cv-installatie: Nefit Ecomline 1998
Boiler: Nefit