Beschrijving
        
In een heerlijk rustig ietwat verscholen straatje, schurkend tegen het gezellige dorpshart van Geffen bevindt zich de Mulderstraat 9, een in 1994 gerealiseerde, in 2006 op de begane grond uitgebouwde en in de loop der jaren op diverse punten gemoderniseerde hoekwoning met onderhoudsvriendelijke achtertuin en meer dan voldoende parkeergelegenheid in de direct achter de woning gelegen parkeerhavens. Deze keurig onderhouden gezinswoning is gelegen op een perceel van 111m² eigen grond, heeft een woonoppervlakte van 104m² en is onder andere ingericht met een ruime doorzon woonkamer, een half open keuken met allerhande keukenapparatuur, een fijne bijkeuken, drie prima formaat slaapkamers en een nette badkamer op de 1e verdieping en een multifunctionele 2e verdieping die bijvoorbeeld gemakkelijk in te richten is als extra slaap- of werkkamer. De ligging is zoals gezegd uitstekend; rustig en beschut en toch in de levendige dorpskern van Geffen op loopafstand van speciaalzaken/winkels, een grote supermarkt en diverse horeca- en eetgelegenheden. Maar ook scholen, sportverenigingen en recreatie-/natuurgebieden zoals de Geffense Plas en het Arboretum bevinden zich op korte afstand, evenals de goede ontsluiting richting snelweg A59, waardoor grote plaatsen zoals Den Bosch, Oss, Nijmegen en Eindhoven snel bereikbaar zijn.
         
     
    
            Indeling
        
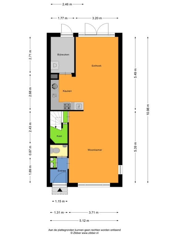
De woning wordt aan de voorzijde middels een kleurrijk beklinkerd voortuintje (overdekt) betreden via de entree/hal, waar zich de meterkast en deels betegelde toiletruimte met staand toilet en fonteintje bevinden. De entree/hal is keurig afgewerkt met een laminaatplankenvloer, licht gespacte wanden, paneeldeuren en een stucwerk plafond. Via een loopdeur komt men in de woonkamer, die door de gerealiseerde uitbouw (2006) een mooie oppervlakte van zo’n 37m² heeft gekregen en die is ingericht met een op de voor-/straatzijde gericht comfortabel zitgedeelte en een op de achtertuin georiënteerde royale eethoek. Ook bevindt zich in de woonkamer de toegangsdeur naar een klein portaal waar zich de trapopgang en de (afsluitbare) trap-/provisiekast bevinden. De aanwezige raampartijen zorgen voor veel lichtinval in de woonkamer, hetgeen haar tot een extra aangename verblijfsruimte maakt! Ook de woonkamer is afgewerkt met dezelfde keurige laminaatplankenvloer, licht gespacte wanden en een strak stucwerk plafond, met in dit geval sierlijsten. De half open keuken is het verlengstuk van de eethoek en biedt naast de nodige kast- en laderuimte plaats aan verschillende keukenapparatuur zoals een koelkast, gaskookplaat, afzuigkap, vaatwasser, oven en magnetron. De aansluitende bijkeuken is een ideale bergruimte waar ook het witgoed opgesteld kan worden. Ook vormt de bijkeuken een ideale droogloop vanuit de achtertuin.
         
     
    
            Eerste verdieping
        
Op de 1e verdieping treffen we naast de overloop drie fijne slaapkamers en de badkamer aan. De slaapkamers hebben een oppervlakte van circa 11m², 8,5m² en 6m² en zijn allen afgewerkt met een laminaatvloer, behangen wanden en lichte stucwerk plafonds. De keurige badkamer (2009) is grotendeels betegeld en ingericht met een inloopdouche, vaste wastafel met meubel, staand toilet en mechanische afzuiging. Het aanwezige dakraam zorgt er voor prettige daglichttoetreding én een extra ventilatiemogelijkheid.
         
     
    
            Tweede verdieping
        
Via een vaste trap is vanaf de overloop de 2e verdieping bereikbaar, waar we een open multifunctionele ruimte met een gebruiksoppervlakte van een kleine 25m² aantreffen. Naast de jonge cv-combiketel (Intergas, 2023) staat er ook de jonge mv-unit (itho Daalderop, 2023) opgesteld en is het grootste gedeelte momenteel ingericht als slaapkamer. Achter één van de knieschotten bevindt zich nog extra opslagruimte.
         
     
    
            Tuin
        
De privacy-biedende, beschutte achtertuin ligt op het noorden, heeft een breedte van circa 5 meter, een diepte van ruim 7 meter en is geheel omsloten. Zij is onderhoudsvriendelijk afgewerkt met sierbestrating/tegels, een enkele border met diverse planten en struikjes en een handig buitenkraantje. Verder treffen we er een houten tuinberging (ca. 6m²) aan, ideaal voor het stallen van bijvoorbeeld de fietsen en het (tuin)gereedschap. De achtertuin kan via een eigen, vernieuwde looppoort betreden worden; wel zo gemakkelijk zo’n eigen achterom!
         
     
    
            Bijzonderheden
        
- De Mulderstraat 9 is voorzien van zowel vloer- muur- als dakisolatie. Ook beschikt zij grotendeels (op de voordeur en de twee ramen op de 2e verdieping na) over isolerende/HR++ beglazing en zijn diverse ramen voorzien van rolluiken (deels elektrisch, grotendeels handbediend). De woning beschikt dan ook over een keurig Energielabel B.
- Bij de uitbouw in 2006 zijn er tuindeuren in de nieuwe achtergevel geplaatst waardoor men vanuit de woonkamer/eethoek direct toegang heeft tot de achtertuin.
- Zowel de cv-combiketel (Intergas KombiKompakt HRE 28/24 A) als de mechanische ventilatie-unit (itho Daalderop) zijn in 2023 vernieuwd.
         
     
        Plattegronden
            
                
                
                    178286551_1586144_mulde_begane_grond_first_design_20251021_4a026b.jpg
                
             
            
                
                
                    178286551-289748932-se-141599929-1761063190627.png
                
             
            
                
                
                    178286551_1586144_mulde_eerste_verdiepi_first_design_20251021_bea6b4.jpg
                
             
            
                
                
                    178286551-289770643-se-141599929-1761063190627.png
                
             
            
                
                
                    178286551_1586144_mulde_tweede_verdiepi_first_design_20251021_7c58bf.jpg
                
             
            
                
                
                    178286551-289772029-se-141599929-1761063190627.png
                
             
            
                
                
                    178286551_1586144_mulde_berging_first_design_20251021_f66da7.jpg
                
             
            
                
                
                    178286551-289772599-se-141599929-1761063190627.png