Beschrijving

Bedrijfsruimte met twee parkeerplaatsen, bruikbaar als showroom, atelier, werkplaats of b.v. opslagruimte, desgewenst in combinatie met kantoor. Het bedrijfsgebouw kent een fraai en tijdloos ontwerp, waarbij elke ondernemer zijn of haar individualiteit kan laten gelden. Zo kunt u uw eigen reclames aanbrengen op de daarvoor aangewezen plaats.

Indeling

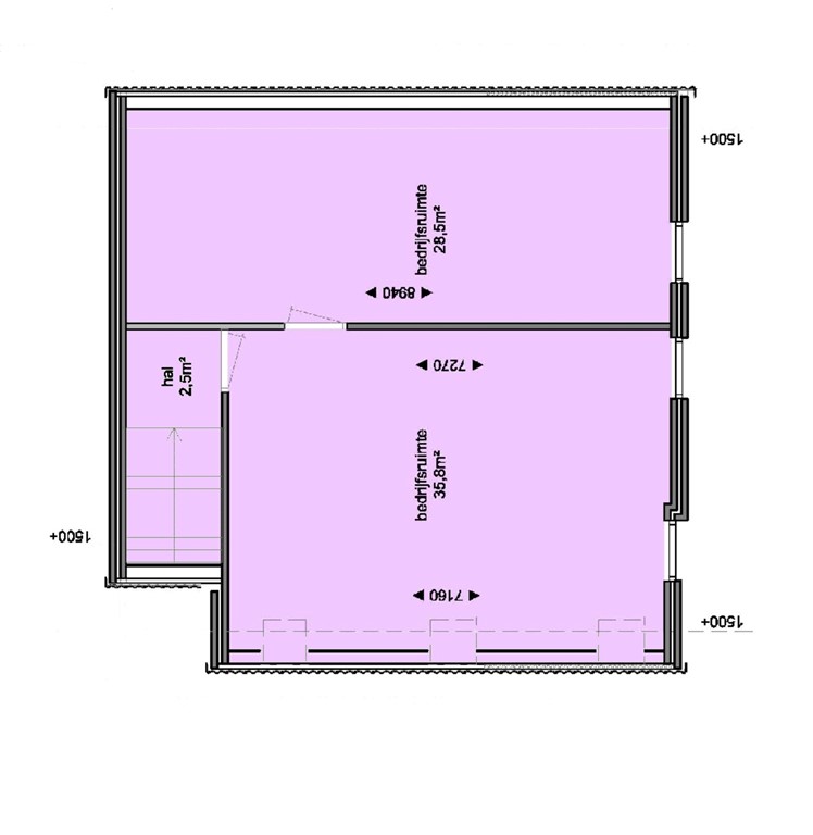
Begane grond: Entree via een loopdeur naar het portaal. Bij binnenkomst heb je toegang tot de bedrijfsruimte of je kunt met de vaste trap naar de eerste verdieping. De bedrijfsruimte op de begane grond is tevens te bereiken via een elektrisch bedienbare overheaddeur (2,65m hoog X 3,00m breed). In de bedrijfsruimte is tevens een toiletgroep met urinoir en wandcloset aanwezig. Zowel de bedrijfsruimte als kantoor hebben diverse raampartijen zodat er voldoende daglicht is, hetgeen zorgt voor een goed arbeidsklimaat.

Eerste verdieping

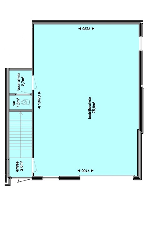
1ste verdieping: Kantoorruimte met systeemplafond voorzien van led inbouwverlichting, een PVC vloer en diverse vaste kasten.

Bijzonderheden

LIGGING:	
Het bedrijfspand is gesitueerd op bedrijventerrein de Beemd ten zuidwesten van het centrum van Heesch. De directe omgeving van het vastgoed wordt gekenmerkt door een concentratie van
groothandels-, ambachts- en industriële bedrijven in het MKB, veelal gecombineerd met een woonruimte.

OPPERVLAKTE:	
De verhuurbaar vloeroppervlakte (begane grond + 1ste verdieping)  bedraagt 149m². 
Begane grond: 82m²
1ste verdieping: 67m²

AFWERKING: 	
De bedrijfsruimte is aan de voorzijde voorzien van een loopdeur en een overheaddeur. Het kantoor op de eerste verdieping is voorzien van een PVC vloer en een systeemplafond met ledverlichting. De kozijnen zijn voorzien van dubbele beglazing. 

BOUWJAAR:	
1980 renovatie 2025

BESTEMMING: 	
Van toepassing is het bestemmingsplan Bedrijventerreinen Bernheze. Enkelbestemming: Bedrijf . Functieaanduiding bedrijf tot en met categorie 3.1

PARKEREN:	
2 vaste aangewezen parkeerplaatsen  

SERVICEKOSTEN: 	     
€ 25,-

Kenmerken